3 bed Detached To Let

£1,350pcm

Whitton Close, Swavesey

  • Detached Bungalow.
  • Three Bedrooms.
  • Driveway with Single Garage.
  • Gas Central Heating.
  • Good Access to Cambridge and the the New A14.
  • Enclosed Rear Garden.
  • Close Proximity to Local Amenities.
  • Double Glazing.
  • Available: Mid January 2026.
  • EPC: D.

Full Description

Set within a lovely village location providing good access to the A14 to Cambridge is this DETACHED BUNGALOW benefiting from three good sized bedrooms, SINGLE GARAGE and driveway parking.

Entrance Hall

UPVC front entry door. Storage cupboard.

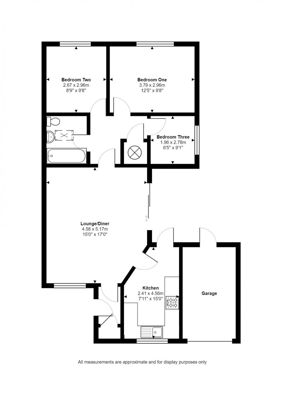
Lounge / Diner - 15' 0'' x 17' 0'' (4.57m x 5.18m)

Sliding patio doors to side elevation. Double glazed window to front elevation.

Kitchen - 7' 11'' x 15' 0'' (2.41m x 4.57m)

Fitted with a range of wall mounted and base units with work surface over. Freestanding cooker with double oven and four-ring gas hob. Sink and drainer unit. Space and plumbing for washing machine. Space for fridge/freezer. Double glazed window to front elevation. UPVC door to rear elevation.

Hallway

Airing cupboard housing hot water cylinder.

Bedroom One - 12' 5'' x 9' 8'' (3.78m x 2.94m)

Double glazed window to rear elevation.

Bedroom Two - 8' 9'' x 9' 8'' (2.66m x 2.94m)

Double glazed window to rear elevation.

Bedroom Three - 6' 5'' x 9' 1'' (1.95m x 2.77m)

Double glazed window to side elevation

Bathroom

Fitted with a three-piece suite comprising panelled bath with bath/shower mixer unit, wash hand basin and WC with low level cistern. Velux window.

Garage

With up and over door to front elevation. Personal door to rear elevation.

External

To the front of the property is a mainly laid to lawn garden with driveway providing off-road parking for one car leading up to the garage. To the rear is an enclosed garden area laid partly to lawn and patio.

Security Deposit

£1557.00

Council Tax

Band C.

Referncing And Holding Deposit

Each applicant over the age of 18 years old will be required to be referenced and will be required to provide photographic identification and proof of address/residency.

A holding deposit of one weeks rent will be requested at point of application. Until payment has been received viewings will continue on the property.

Should the tenancy then not proceed due to the decision of ourselves as agent or the Landlord then this will be repaid to you in full. A decision on this will be made within 15 days of the payment being made and the holding fee returned to you within 7 days of the decision being made not to proceed.

This payment though will not be refunded in the event that you withdraw your application to rent the property, you fail your right to rent checks or you provide false or misleading information on your application form leading to the application failing.

Should the tenancy proceed as planned then this holding charge will be converted in to part payment of the security deposit for the tenancy.

Agents Notes

These particulars whilst believed to be correct at time of publishing should be used as a guide only. Any electrical items other than those used for heating, lighting or cooking are provided on the understanding that the Landlord will not be held liable for their repair or replacement should they breakdown unless otherwise agreed.

Floorplan

Floorplan for Whitton Close, Swavesey

EPC

EPC Graph for Whitton Close, Swavesey

Book a viewing

Pick a Day


  1. This Week
  2. Next Week
  3. In a Fortnight

Select a Time