1 George Street, Huntingdon
Cambridgeshire, PE29 3AD
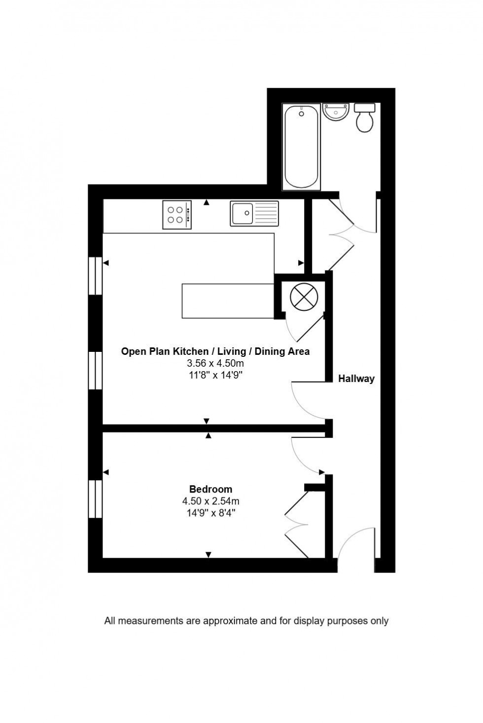
Situated a short distance from the town's main high street is this first floor apartment, with an open plan kitchen / living / dining area, double bedroom with built-in wardrobe and bathroom. Externally there is resident parking at the front of the development and well maintained communal garden areas to the rear.
Front entry door. Storage cupboard.
Window to side elevation. Built-in double wardrobe.
Fitted with a range of wall mounted and base units with worksurface over. Single electric oven. Four-ring electric hob with cooker extractor over. Sink and drainer unit. Space and plumbing for washing machine. Space for undercounter fridge/freezer. Windows to side elevation. Airing cupboard housing hot water cylinder.
Fitted with a three-piece suite comprising panelled bath with shower over, WC with low level cistern and wash hand basin. Tiled surrounds.
To the front of the development is off-street resident only parking. The development is access via an entry door system and there are communal gardens and seating area to the rear of the building.
Sorry, no pets at this property.
£1067.00
Each applicant over the age of 18 years old will be required to be referenced and provide the required documentation under the right to rent legislation. This will include photographic identification and proof of address/residency.
A holding deposit of one weeks rent will be requested at point of application. Until payment has been received viewings will continue on the property.
Should the tenancy then not proceed due to the decision of ourselves as agent or the Landlord then this will be repaid to you in full. A decision on this will be made within 15 days of the payment being made and the holding fee returned to you within 7 days of the decision being made not to proceed.
This payment though will not be refunded in the event that you withdraw your application to rent the property, you fail your right to rent checks or you provide false or misleading information on your application form leading to the application failing.
Should the tenancy proceed as planned then this holding charge will be converted in to part payment of the security deposit for the tenancy.
These particulars whilst believed to be correct at time of publishing should be used as a guide only. Any electrical items other than those used for heating, lighting or cooking are provided on the understanding that the Landlord will not be held liable for their repair or replacement should they breakdown unless otherwise agreed.
Band A.